Menu
SOMI - Architects
studio
ABOUT US
VISION
REVIEWS & FEEDBACK
SERVICES
gallery
work
contact
studio
ABOUT US
VISION
REVIEWS & FEEDBACK
SERVICES
gallery
work
contact
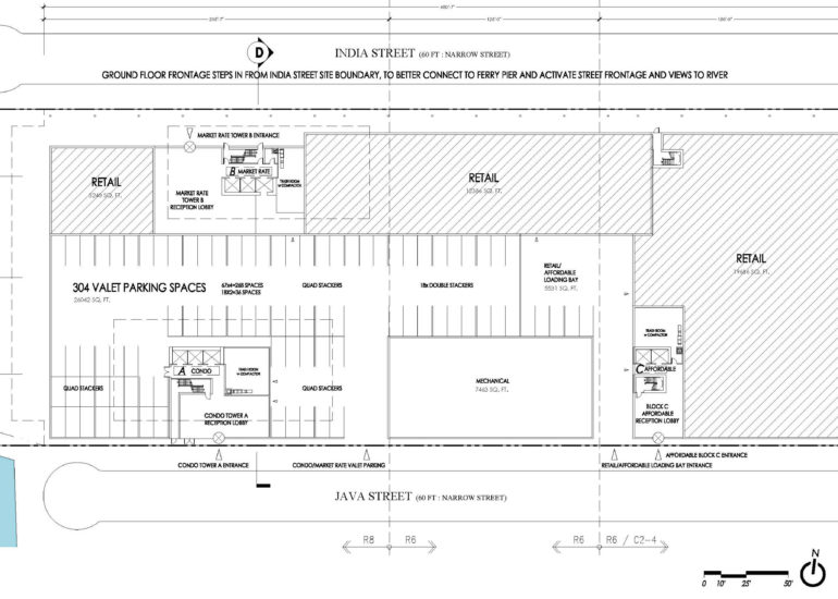
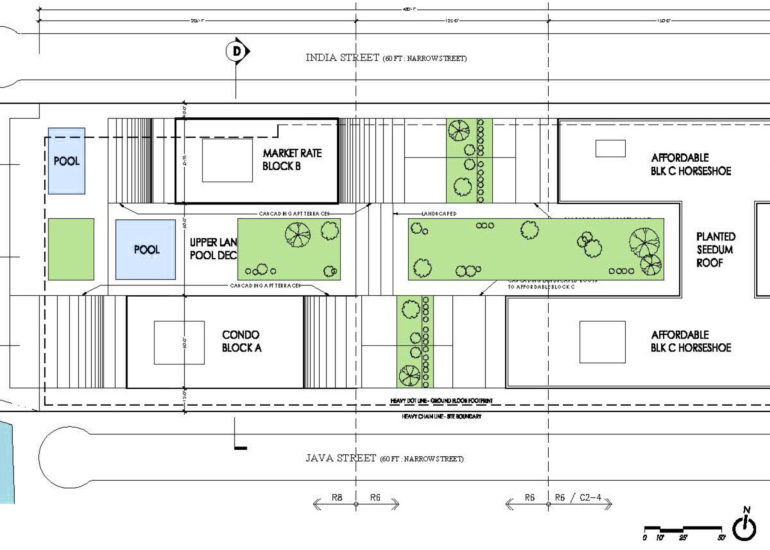
INDIA STREET
INDIA STREET
URBAN WAVE
MIXED-USE
CONCEPT TO SOLVE THE CHALLENGE OF A SUPER-DENSE PROGRAMME OF RESIDENTIAL ACCOMMODATION - CONDOS, MARKET RATE & AFFORDABLE - ON A TIGHT EAST RIVER SITE WITH COMMERCIAL AT THE GROUND FLOOR LEVERAGING THE RIVER-PIER SIGNIFICANT FOOT TRAFFIC
650,000 SQM GROSS AREA, 207 MARKET RATE RENTAL APTS, 292 CONDO APTS, 154 AFFORDABLE APTS, 3,500 SQM RETAIL.
BROOKLYN, NYC, USA
CONCEPT BY ALUN MORETON, FOR SLCE-ARCHITECTS PROJECT 2019
Recently in Portfolio
2 IN 1 HOUSE
BLUE HOUSE
CYPRUS INSTITUTE OF NEUROLOGY AND GENETICS
DC APARTMENT NO 01
PILATES STUDIO
MM RESIDENCE
ST.JOHN RESIDENCE
UP IN THE HILLS
530 WEST BROADWAY
ART’OTEL LONDON
INNOVATE-CREATE CENTER
ORANGE STREET
TRIBECA CITYSCRAPER
TUETONIA TRIPLE TOWER
COUNTRY HOUSE
PULA RESORT
INDIA STREET
PROJECT BUCARESTI
OFFICE
NOMAD APARTMENT
ELECTI OFFICE
MM APARTMENT
DREAM CATCHER MEMORIAL PARK
DC APARTMENT NO 02
BOX HOUSE
BLOCK CONCEPT
HOME SWEET HOME
HOUSE & HAIR STUDIO
ONYX HOUSE
PILATES HOUSE
THE GUEST HOUSE
THE SUI GENERIS HOUSE
You can enable/disable right clicking from Theme Options and customize this message too.